Commercial Sky View Space for Rent in Lucknow

An Affordable and flexible Commercial Property in Lucknow is now available for rent at an attractive rate of ₹25 per sq. ft., located near Bhavani Chauraha, Jankipuram, Lucknow. This property offers a unique opportunity for businesses seeking open, adaptable space in a well-connected and steadily growing locality.

Situated close to a prominent junction, the location ensures smooth accessibility from major roads and nearby residential sectors. Jankipuram has emerged as a reliable commercial destination, supported by organized infrastructure, regular public movement, and proximity to essential amenities such as housing societies, educational institutions, clinics, and local markets. These factors contribute to a convenient operational environment for various commercial activities.

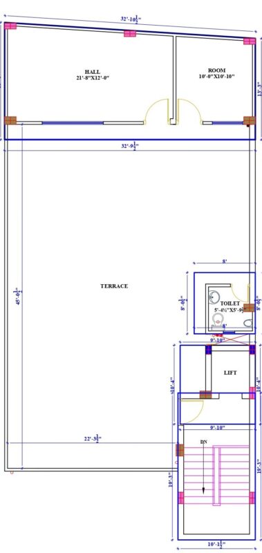
The terrace layout provides an open and airy setting, making it suitable for businesses that benefit from flexible or semi-open spaces. It can be efficiently utilized for cafés, cloud kitchens, food preparation units, fitness or yoga studios, training centers, creative studios, storage purposes, small event setups, or recreational and utility-based commercial use. The open design allows easy customization to meet specific functional or branding requirements.

This terrace space is especially appealing for startups and businesses aiming to minimize rental costs while maintaining a presence in a prime locality. The competitive pricing makes it a cost-effective option for enterprises exploring innovative business models or expansion opportunities.

For those looking for a Commercial Property in Lucknow in Jankipuram, this terrace property near Bhavani Chauraha delivers flexibility, accessibility, and value. Schedule a site visit to understand the space potential and discover how this terrace unit can be adapted to support your business vision effectively.

📍Location – Bhavani Chauraha, Near Om Shri Ganpati Mishtan Bhandaar Sector 3, Jankipuram Extension, Lucknow, Uttar Pradesh 226031
📞 Contact: 6307645523

Project Terrace Floor Plan